Karl-Liebknecht-Straße 49
04107 Leipzig
Tel.: 0341 97 89 633
Fax: 0341 97 89 631
info[at]rauarchitekten.de
www.rauarchitekten.de

Nächstes Projekt »

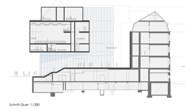
Rathaus Plauen

Architektur Wettbewerb für den Ersatzneubau Eingangsbereich des Rathauses Plauen

ARGE:
Bauplanung Plauen GmbH
Riedel Architekten BDA, Leipzig
Rau_Architekten BDA, Leipzig